Leave a Message

Thank you for your message. I will be in touch with you shortly.

Explore My Properties

Property Description

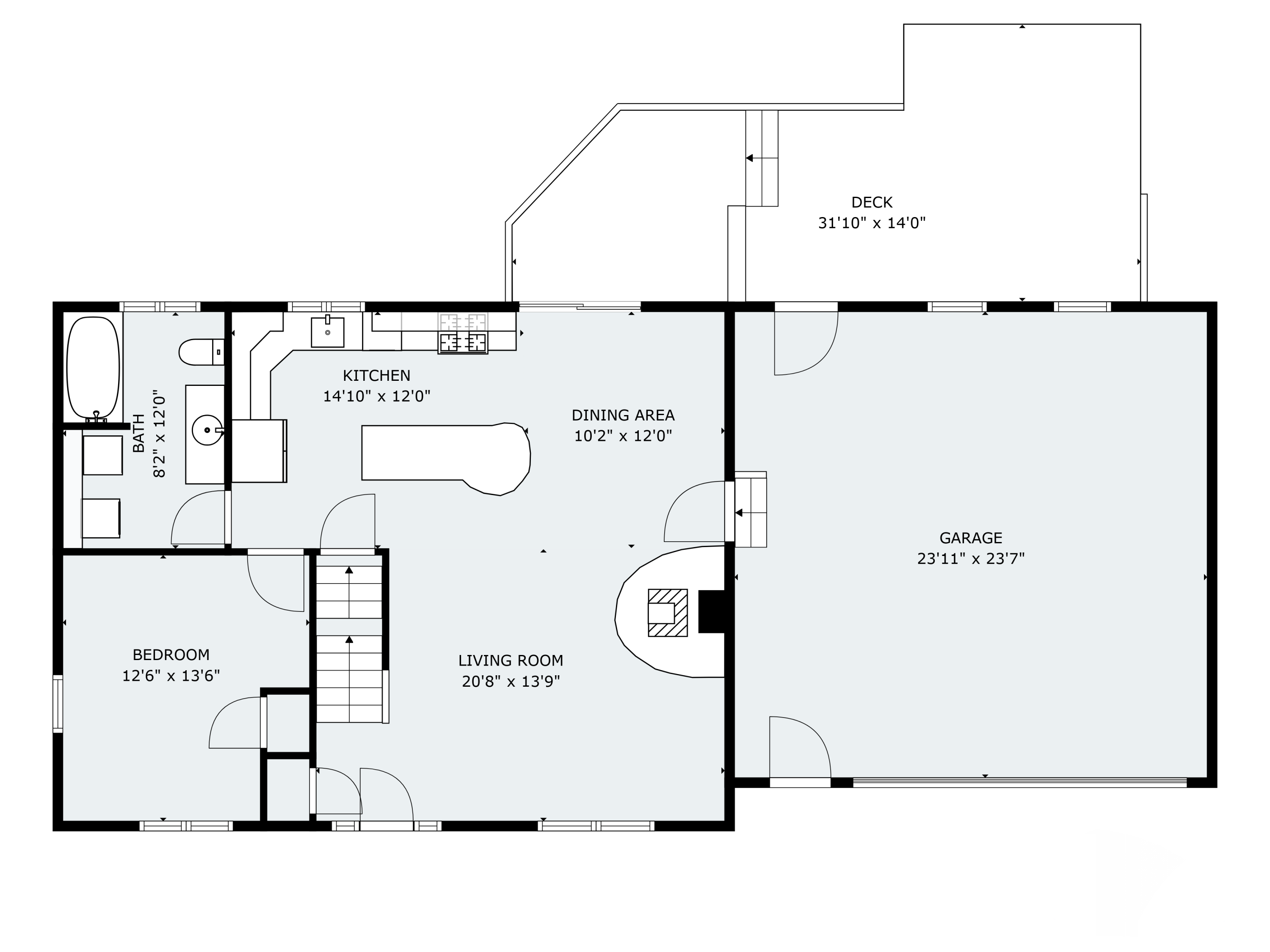
Charming Contemporary Cape located near Pine Point, Blue Point Primary School, and the Scarborough Marsh, offering the perfect blend of comfort, style, and ample living space. The 1st floor features an open-concept K/DR/LR, ideal for family gatherings and entertaining. A 1st-floor bedroom/home office and full bathroom with a laundry area complete this level. In 2019, the kitchen underwent a major remodel, showcasing new cabinetry; leathered granite countertops; an island; and wine fridge. Sliding glass doors lead from the DR to the deck. A woodstove and two-story chimney anchor the LR, while the dramatic vaulted ceiling with skylights fill the room with natural light, creating an airy, welcoming atmosphere. Upstairs, a corridor balcony looks down over the LR and provides access to 3 additional bedrooms, including the primary bedroom with its own updated bathroom. The 3rd full bathroom completes this level. Gleaming hardwood floors flow throughout both the 1st and 2nd levels. The finished daylight-walkout basement provides over 600 sf of living space for myriad uses. The backyard abuts the Scarborough Marsh, ensuring privacy and no future development. Mature landscaping, including apple trees, Japanese dogwoods, and beach roses, adds to the property's curb appeal. Outdoor recreational opportunities abound for people of all ages, including biking or walking the Eastern Trail behind the house; playing ball at the town fields; and kayaking, canoeing, or birdwatching at the Scarborough Marsh Audubon Center. Enjoy living in a desirable coastal community known for its many sandy beaches; excellent schools; and legendary seafood restaurants. Old Orchard Beach is to the south, offering iconic amusement parks; Amtrak's Downeaster train station; and The Pier. To the north, the vibrant City of Portland provides award-winning restaurants and some of the finest dining in the country, as well as museums; music venues; and the historic Old Port. A wonderful & unique opportunity!

Overview

Property Status
Sold
Lot Size
0.76 Acres
MLS ID
1616534
Property Type
Residential
Year Built
1987

Features & Amenities

Total Area
2,635 Sq.Ft.
Architecture Styles
Cape Cod, Contemporary
View Description
Trees/Woods
Garage Spaces
2.0
Water Source
Public
Roof
Shingle
Lot Features
Well Landscaped, Open, Level, Abuts Conservation, Near Golf Course, Near Public Beach, Near Town, Neighborhood, Subdivided, Suburban
Parking
Auto Door Opener, 1 - 4 Spaces, Paved, Inside Entrance
Heat Type
Zoned, Stove, Hot Water, Baseboard
Air Conditioning
None
Laundry Room
Laundry - 1st Floor, Main Level
Appliances
Washer, Refrigerator, Gas Range, Dryer, Dishwasher
Other Interior Features
Walk-in Closets, 1st Floor Bedroom, Bathtub, One-Floor Living, Shower, Storage, Primary Bedroom w/Bath
Sewer
Quasi-Public
Substructure
Concrete Perimeter
School District
Scarborough Public Schools
Sales Price
$700,000
Real Estate Tax
$6,756/yr
HOA
$700/yr
Zoning
Residential

Downloads

19 Burnham Woods Circle

Schedule a Tour

We would love to help you see this beautiful home! As a full-service brokerage, we can help you tour. Please submit an offer, and answer questions about the buying process.

Enter a valid email

Thank you

for your interest in 19 Burnham Woods Circle, Scarborough, ME 04074

back to page
19 Burnham Woods Circle
Navigate
19 Burnham Woods Circle
explore in 3d

Current Listings

  • 62 Hunnewell Avenue Sold

    $1,600,000

    62 Hunnewell Avenue, Phippsburg, ME 04562

    • 4 Beds
    • 3 Baths
    • 3,310 Sq.Ft.
  • 15 North Point Lane Sold

    $1,100,000

    15 North Point Lane, Harpswell, ME 04079

    • 3 Beds
    • 3 Baths
    • 2,146 Sq.Ft.
  • 246 Coombs Road Sold

    $925,000

    246 Coombs Road, Brunswick, ME 04011

    • 4 Beds
    • 4 Baths
    • 2,998 Sq.Ft.
  • 978 Wiscasset Road For Sale

    $899,000

    978 Wiscasset Road, Boothbay, ME 04537

    • 4 Beds
    • 3 Baths
    • 2,136 Sq.Ft.
  • 467 Bay Road For Sale

    $895,000

    467 Bay Road, Bowdoinham, ME 04008

    • 3 Beds
    • 3 Baths
    • 2,164 Sq.Ft.
  • 14 Wolf Road Sold

    $800,000

    14 Wolf Road, Boothbay, ME 04537

    • 3 Beds
    • 1 Bath
    • 1,075 Sq.Ft.
  • 54 Tree Farm Road Sold

    $780,000

    54 Tree Farm Road, Brunswick, ME 04011

    • 3 Beds
    • 3 Baths
    • 3,376 Sq.Ft.
  • 72 Westside Drive Sold

    $765,000

    72 Westside Drive, West Bath, ME 04530

    • 3 Beds
    • 2 Baths
    • 1,484 Sq.Ft.
  • 3 Brian Drive Sold

    $750,000

    3 Brian Drive, Brunswick, ME 04011

    • 4 Beds
    • 3 Baths
    • 2,492 Sq.Ft.
  • 21 Longview Drive Sold

    $725,000

    21 Longview Drive, Portland, ME 04103

    • 4 Beds
    • 3 Baths
    • 2,448 Sq.Ft.
  • 400 Harpswell Islands Road Sold

    $710,000

    400 Harpswell Islands Road, Harpswell, ME 04079

    • 3 Beds
    • 2 Baths
    • 2,520 Sq.Ft.
  • 19 Burnham Woods Circle Sold

    $700,000

    19 Burnham Woods Circle, Scarborough, ME 04074

    • 4 Beds
    • 3 Baths
    • 2,635 Sq.Ft.
  • Lot 18 Beacon Drive Pending

    $689,900

    Lot 18 Beacon Drive, Brunswick, ME 04011

    • 3 Beds
    • 3 Baths
    • 2,094 Sq.Ft.
  • 369 River Road Sold

    $685,000

    369 River Road, Richmond, ME 04357

    • 3 Beds
    • 3 Baths
    • 2,576 Sq.Ft.
  • 20 Orchard Lane Sold

    $676,000

    20 Orchard Lane, New Gloucester, ME 04260

    • 3 Beds
    • 2 Baths
    • 2,154 Sq.Ft.
  • 11 Beacon Drive Pending

    $650,000

    11 Beacon Drive, Brunswick, ME 04011

    • 3 Beds
    • 2 Baths
    • 1,480 Sq.Ft.
  • 23 Sunny Acres Lane For Sale

    $650,000

    23 Sunny Acres Lane, Boothbay, ME 04537

    • 3 Beds
    • 3 Baths
    • 1,604 Sq.Ft.
  • 96 Haywood Lane Sold

    $650,000

    96 Haywood Lane, North Yarmouth, ME 04097

    • 2 Beds
    • 2 Baths
    • 1,572 Sq.Ft.
  • 145 Pork Point Road Sold

    $628,500

    145 Pork Point Road, Bowdoinham, ME 04008

    • 3 Beds
    • 2 Baths
    • 2,080 Sq.Ft.
  • 6 Apple Lane Sold

    $554,000

    6 Apple Lane, Standish, ME 04084

    • 4 Beds
    • 3 Baths
    • 2,558 Sq.Ft.
  • 407 Carding Machine Road Sold

    $550,000

    407 Carding Machine Road, Bowdoinham, ME 04008

    • 2 Beds
    • 1 Bath
    • 1,476 Sq.Ft.
  • 31 Beacon Drive Pending

    $544,100

    31 Beacon Drive, Brunswick, ME 04011

    • 3 Beds
    • 3 Baths
    • 2,269 Sq.Ft.
  • 1854 Alna Road Sold

    $525,000

    1854 Alna Road, Alna, ME 04535

    • 3 Beds
    • 2 Baths
    • 1,921 Sq.Ft.
  • 18 Garrison Street Sold

    $500,000

    18 Garrison Street, Brunswick, ME 04011

    • 5 Beds
    • 2 Baths
    • 2,696 Sq.Ft.
  • 10 Penley Street E For Sale

    $497,000

    10 Penley Street E, Augusta, ME 04330

    • 3 Beds
    • 1 Bath
    • 2,850 Sq.Ft.
  • 376 Bowdoinham Road Sold

    $484,000

    376 Bowdoinham Road, Sabattus, ME 04280

    • 3 Beds
    • 2 Baths
    • 1,782 Sq.Ft.
  • 122 Jordan Avenue Sold

    $470,000

    122 Jordan Avenue, Brunswick, ME 04011

    • 3 Beds
    • 2 Baths
    • 1,318 Sq.Ft.
  • 70 Blue Spruce Road Sold

    $435,000

    70 Blue Spruce Road, Wilton, ME 04294

    • 4 Beds
    • 3 Baths
    • 2,566 Sq.Ft.
  • 34 Columbia Avenue Sold

    $415,000

    34 Columbia Avenue, Brunswick, ME 04011

    • 3 Beds
    • 2 Baths
    • 1,340 Sq.Ft.
  • 16 Garrison Street Sold

    $411,000

    16 Garrison Street, Brunswick, ME 04011

    • 2 Baths
    • 1,794 Sq.Ft.
  • 21 Chestnut Street Sold

    $385,000

    21 Chestnut Street, Bath, ME 04530

    • 3 Beds
    • 2 Baths
    • 1,857 Sq.Ft.
  • 175 Main Street Sold

    $380,000

    175 Main Street, Bowdoinham, ME 04008

    • 3 Beds
    • 2 Baths
    • 1,144 Sq.Ft.
  • 497 Lower Street Sold

    $375,000

    497 Lower Street, Turner, ME 04282

    • 5 Beds
    • 2 Baths
    • 2,177 Sq.Ft.
  • 11 Center Street Sold

    $365,400

    11 Center Street, Richmond, ME 04357

    • 3 Beds
    • 2 Baths
    • 2,040 Sq.Ft.
  • 17 Oak Street Sold

    $351,500

    17 Oak Street, Brunswick, ME 04011

    • 3 Beds
    • 1 Bath
    • 1,536 Sq.Ft.
  • 1145 Brunswick Road Sold

    $350,000

    1145 Brunswick Road, Richmond, ME 04357

    • 2 Beds
    • 2 Baths
    • 1,352 Sq.Ft.
  • 359 Augusta Road Sold

    $350,000

    359 Augusta Road, Topsham, ME 04086

    • 2 Baths
    • 2,212 Sq.Ft.
  • 5 Fairview Drive Sold

    $345,000

    5 Fairview Drive, Leeds, ME 04263

    • 3 Beds
    • 2 Baths
    • 2,352 Sq.Ft.
  • 82 Munroe Lane, 82 Sold

    $335,000

    82 Munroe Lane, 82, Topsham, ME 04086

    • 2 Beds
    • 2 Baths
    • 1,104 Sq.Ft.
  • 17 Secluded Drive Sold

    $325,000

    17 Secluded Drive, Windham, ME 04062

  • 312 High Street Sold

    $325,000

    312 High Street, Bath, ME 04530

    • 2 Beds
    • 2 Baths
    • 1,300 Sq.Ft.
  • 0 White Road Pending

    $315,000

    0 White Road, Bowdoinham, ME 04008

  • 43 Munroe Lane, 43 Sold

    $299,000

    43 Munroe Lane, 43, Topsham, ME 04086

    • 2 Beds
    • 2 Baths
    • 1,104 Sq.Ft.
  • 974 Winslows Mills Road Sold

    $299,000

    974 Winslows Mills Road, Waldoboro, ME 04572

    • 3 Beds
    • 2 Baths
    • 1,260 Sq.Ft.
  • 33 Munroe Lane, 33 Sold

    $276,700

    33 Munroe Lane, 33, Topsham, ME 04086

    • 2 Beds
    • 2 Baths
    • 1,104 Sq.Ft.
  • 63 Main Street Sold

    $255,000

    63 Main Street, Turner, ME 04282

    • 3 Beds
    • 3 Baths
    • 1,680 Sq.Ft.
  • 441 Middle Road Sold

    $252,000

    441 Middle Road, Woolwich, ME 04579

    • 2 Beds
    • 1 Bath
    • 914 Sq.Ft.
  • 15 Blueberry Hill Road Active Under Contract

    $250,000

    15 Blueberry Hill Road, Georgetown, ME 04548

    • 2 Beds
    • 512 Sq.Ft.
  • 59 Munroe Lane, 59 Sold

    $235,000

    59 Munroe Lane, 59, Topsham, ME 04086

    • 2 Beds
    • 2 Baths
    • 1,104 Sq.Ft.
  • 143 Mount Vernon Avenue Sold

    $234,000

    143 Mount Vernon Avenue, Augusta, ME 04330

    • 3 Beds
    • 2 Baths
    • 1,736 Sq.Ft.
View All Properties

Follow Us On Instagram