Leave a Message

Thank you for your message. I will be in touch with you shortly.

Explore My Properties

Property Description

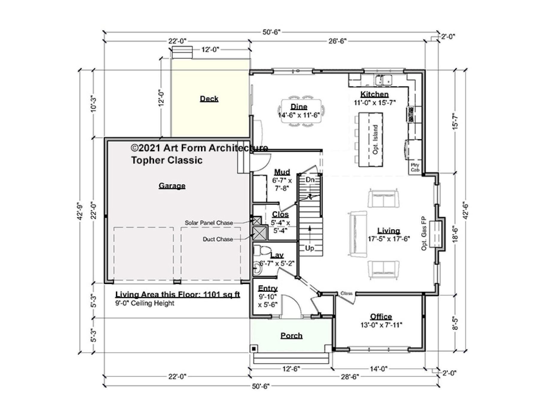
Welcome to Beacon Ridge! Build the beautiful home pictured here in this new, up-and-coming neighborhood in the vibrant community of Brunswick, or meet with the contractor to discuss your needs and choose your own custom design from Art Form Architecture. The contractor is PAS Construction LLC--a skilled, experienced and licensed builder whose standards exceed current building codes. PAS Construction is renowned for building quality custom homes that are attractive and distinctive. Their homes also feature many energy-efficient systems including high-efficiency Mitsubishi heat pumps and solar/net zero options. Beacon Ridge is located in scenic East Brunswick--one of Mid Coast Maine's best-kept secrets. Live here and enjoy the best of both worlds, being within walking distance to Thomas Point Beach, and the convenience of being near Cook's Corner: an area that benefits from a considerable amount of recent development and growth, including Brunswick Landing's thriving enterprises; restaurants; and shops. Mid Coast Hospital; an Executive Airport; and Bath Iron Works are nearby, as well. The iconic Maine coast/Harpswell islands are located a short distance to the south on Route 24; and the artsy, cool city of Bath is only 7 miles heading down east. Beacon Ridge is approximately 3.5 miles to Bowdoin College; the train station; and all that downtown Brunswick has to offer. Thirty-five minutes to Portland. Central to Augusta and L/A, as well. Act now while there are a few lots left in this sought after location! [The ultimate price of this new construction package will depend on Buyer's choices relating to design and finishes; as well as fluctuations in the costs for materials.]

Overview

Property Status
Pending
Lot Size
0.45 Acres
MLS ID
1572995
Property Type
Residential
Year Built
2023

Features & Amenities

Total Area
2,094 Sq.Ft.
Neighborhood
Brunswick
Architecture Styles
Contemporary, Colonial
View Description
Trees/Woods
Garage Spaces
2.0
Water Source
Private, Well Needed on Site
Roof
Shingle
Lot Features
Open, Level, Wooded, Near Golf Course, Near Public Beach, Near Shopping, Near Town, Neighborhood, Subdivided, Suburban, Near Railroad
Parking
1 - 4 Spaces, Paved, Inside Entrance
Heat Type
Heat Pump
Air Conditioning
Heat Pump
Laundry Room
Upper Level
Appliances
ENERGY STAR Qualified Appliances, Refrigerator, Electric Range, Dishwasher
Other Interior Features
Bathtub, Shower, Storage, Primary Bedroom w/Bath
Sewer
Public Sewer
Substructure
Concrete Perimeter
School District
Brunswick Public Schools
Sales Price
$689,900
Real Estate Tax
$792/yr
Zoning
GR4

Downloads

Lot 18 Beacon Drive

Schedule a Tour

We would love to help you see this beautiful home! As a full-service brokerage, we can help you tour. Please submit an offer, and answer questions about the buying process.

Enter a valid email

Thank you

for your interest in Lot 18 Beacon Drive, Brunswick, ME 04011

back to page
Lot 18 Beacon Drive
Navigate
Brunswick

Explore Brunswick

read more

Mortgage Calculator

Estimate your monthly mortgage payment, including the principal and interest, property taxes, and HOA. Adjust the values to generate a more accurate rate.
$0,000 Your Payment 20 15 65
$0,000 Your Payment

Current Listings

  • 62 Hunnewell Avenue Sold

    $1,600,000

    62 Hunnewell Avenue, Phippsburg, ME 04562

    • 4 Beds
    • 3 Baths
    • 3,310 Sq.Ft.
  • 15 North Point Lane Sold

    $1,100,000

    15 North Point Lane, Harpswell, ME 04079

    • 3 Beds
    • 3 Baths
    • 2,146 Sq.Ft.
  • 246 Coombs Road Sold

    $925,000

    246 Coombs Road, Brunswick, ME 04011

    • 4 Beds
    • 4 Baths
    • 2,998 Sq.Ft.
  • 978 Wiscasset Road For Sale

    $899,000

    978 Wiscasset Road, Boothbay, ME 04537

    • 4 Beds
    • 3 Baths
    • 2,136 Sq.Ft.
  • 467 Bay Road For Sale

    $895,000

    467 Bay Road, Bowdoinham, ME 04008

    • 3 Beds
    • 3 Baths
    • 2,164 Sq.Ft.
  • 14 Wolf Road Sold

    $800,000

    14 Wolf Road, Boothbay, ME 04537

    • 3 Beds
    • 1 Bath
    • 1,075 Sq.Ft.
  • 54 Tree Farm Road Sold

    $780,000

    54 Tree Farm Road, Brunswick, ME 04011

    • 3 Beds
    • 3 Baths
    • 3,376 Sq.Ft.
  • 72 Westside Drive Sold

    $765,000

    72 Westside Drive, West Bath, ME 04530

    • 3 Beds
    • 2 Baths
    • 1,484 Sq.Ft.
  • 3 Brian Drive Sold

    $750,000

    3 Brian Drive, Brunswick, ME 04011

    • 4 Beds
    • 3 Baths
    • 2,492 Sq.Ft.
  • 21 Longview Drive Sold

    $725,000

    21 Longview Drive, Portland, ME 04103

    • 4 Beds
    • 3 Baths
    • 2,448 Sq.Ft.
  • 400 Harpswell Islands Road Sold

    $710,000

    400 Harpswell Islands Road, Harpswell, ME 04079

    • 3 Beds
    • 2 Baths
    • 2,520 Sq.Ft.
  • 19 Burnham Woods Circle Sold

    $700,000

    19 Burnham Woods Circle, Scarborough, ME 04074

    • 4 Beds
    • 3 Baths
    • 2,635 Sq.Ft.
  • Lot 18 Beacon Drive Pending

    $689,900

    Lot 18 Beacon Drive, Brunswick, ME 04011

    • 3 Beds
    • 3 Baths
    • 2,094 Sq.Ft.
  • 369 River Road Sold

    $685,000

    369 River Road, Richmond, ME 04357

    • 3 Beds
    • 3 Baths
    • 2,576 Sq.Ft.
  • 20 Orchard Lane Sold

    $676,000

    20 Orchard Lane, New Gloucester, ME 04260

    • 3 Beds
    • 2 Baths
    • 2,154 Sq.Ft.
  • 11 Beacon Drive Pending

    $650,000

    11 Beacon Drive, Brunswick, ME 04011

    • 3 Beds
    • 2 Baths
    • 1,480 Sq.Ft.
  • 23 Sunny Acres Lane For Sale

    $650,000

    23 Sunny Acres Lane, Boothbay, ME 04537

    • 3 Beds
    • 3 Baths
    • 1,604 Sq.Ft.
  • 96 Haywood Lane Sold

    $650,000

    96 Haywood Lane, North Yarmouth, ME 04097

    • 2 Beds
    • 2 Baths
    • 1,572 Sq.Ft.
  • 145 Pork Point Road Sold

    $628,500

    145 Pork Point Road, Bowdoinham, ME 04008

    • 3 Beds
    • 2 Baths
    • 2,080 Sq.Ft.
  • 6 Apple Lane Sold

    $554,000

    6 Apple Lane, Standish, ME 04084

    • 4 Beds
    • 3 Baths
    • 2,558 Sq.Ft.
  • 407 Carding Machine Road Sold

    $550,000

    407 Carding Machine Road, Bowdoinham, ME 04008

    • 2 Beds
    • 1 Bath
    • 1,476 Sq.Ft.
  • 31 Beacon Drive Pending

    $544,100

    31 Beacon Drive, Brunswick, ME 04011

    • 3 Beds
    • 3 Baths
    • 2,269 Sq.Ft.
  • 1854 Alna Road Sold

    $525,000

    1854 Alna Road, Alna, ME 04535

    • 3 Beds
    • 2 Baths
    • 1,921 Sq.Ft.
  • 18 Garrison Street Sold

    $500,000

    18 Garrison Street, Brunswick, ME 04011

    • 5 Beds
    • 2 Baths
    • 2,696 Sq.Ft.
  • 10 Penley Street E For Sale

    $497,000

    10 Penley Street E, Augusta, ME 04330

    • 3 Beds
    • 1 Bath
    • 2,850 Sq.Ft.
  • 376 Bowdoinham Road Sold

    $484,000

    376 Bowdoinham Road, Sabattus, ME 04280

    • 3 Beds
    • 2 Baths
    • 1,782 Sq.Ft.
  • 122 Jordan Avenue Sold

    $470,000

    122 Jordan Avenue, Brunswick, ME 04011

    • 3 Beds
    • 2 Baths
    • 1,318 Sq.Ft.
  • 70 Blue Spruce Road Sold

    $435,000

    70 Blue Spruce Road, Wilton, ME 04294

    • 4 Beds
    • 3 Baths
    • 2,566 Sq.Ft.
  • 34 Columbia Avenue Sold

    $415,000

    34 Columbia Avenue, Brunswick, ME 04011

    • 3 Beds
    • 2 Baths
    • 1,340 Sq.Ft.
  • 16 Garrison Street Sold

    $411,000

    16 Garrison Street, Brunswick, ME 04011

    • 2 Baths
    • 1,794 Sq.Ft.
  • 21 Chestnut Street Sold

    $385,000

    21 Chestnut Street, Bath, ME 04530

    • 3 Beds
    • 2 Baths
    • 1,857 Sq.Ft.
  • 175 Main Street Sold

    $380,000

    175 Main Street, Bowdoinham, ME 04008

    • 3 Beds
    • 2 Baths
    • 1,144 Sq.Ft.
  • 497 Lower Street Sold

    $375,000

    497 Lower Street, Turner, ME 04282

    • 5 Beds
    • 2 Baths
    • 2,177 Sq.Ft.
  • 11 Center Street Sold

    $365,400

    11 Center Street, Richmond, ME 04357

    • 3 Beds
    • 2 Baths
    • 2,040 Sq.Ft.
  • 17 Oak Street Sold

    $351,500

    17 Oak Street, Brunswick, ME 04011

    • 3 Beds
    • 1 Bath
    • 1,536 Sq.Ft.
  • 1145 Brunswick Road Sold

    $350,000

    1145 Brunswick Road, Richmond, ME 04357

    • 2 Beds
    • 2 Baths
    • 1,352 Sq.Ft.
  • 359 Augusta Road Sold

    $350,000

    359 Augusta Road, Topsham, ME 04086

    • 2 Baths
    • 2,212 Sq.Ft.
  • 5 Fairview Drive Sold

    $345,000

    5 Fairview Drive, Leeds, ME 04263

    • 3 Beds
    • 2 Baths
    • 2,352 Sq.Ft.
  • 82 Munroe Lane, 82 Sold

    $335,000

    82 Munroe Lane, 82, Topsham, ME 04086

    • 2 Beds
    • 2 Baths
    • 1,104 Sq.Ft.
  • 17 Secluded Drive Sold

    $325,000

    17 Secluded Drive, Windham, ME 04062

  • 312 High Street Sold

    $325,000

    312 High Street, Bath, ME 04530

    • 2 Beds
    • 2 Baths
    • 1,300 Sq.Ft.
  • 0 White Road Pending

    $315,000

    0 White Road, Bowdoinham, ME 04008

  • 43 Munroe Lane, 43 Sold

    $299,000

    43 Munroe Lane, 43, Topsham, ME 04086

    • 2 Beds
    • 2 Baths
    • 1,104 Sq.Ft.
  • 974 Winslows Mills Road Sold

    $299,000

    974 Winslows Mills Road, Waldoboro, ME 04572

    • 3 Beds
    • 2 Baths
    • 1,260 Sq.Ft.
  • 33 Munroe Lane, 33 Sold

    $276,700

    33 Munroe Lane, 33, Topsham, ME 04086

    • 2 Beds
    • 2 Baths
    • 1,104 Sq.Ft.
  • 63 Main Street Sold

    $255,000

    63 Main Street, Turner, ME 04282

    • 3 Beds
    • 3 Baths
    • 1,680 Sq.Ft.
  • 441 Middle Road Sold

    $252,000

    441 Middle Road, Woolwich, ME 04579

    • 2 Beds
    • 1 Bath
    • 914 Sq.Ft.
  • 15 Blueberry Hill Road Active Under Contract

    $250,000

    15 Blueberry Hill Road, Georgetown, ME 04548

    • 2 Beds
    • 512 Sq.Ft.
  • 59 Munroe Lane, 59 Sold

    $235,000

    59 Munroe Lane, 59, Topsham, ME 04086

    • 2 Beds
    • 2 Baths
    • 1,104 Sq.Ft.
  • 143 Mount Vernon Avenue Sold

    $234,000

    143 Mount Vernon Avenue, Augusta, ME 04330

    • 3 Beds
    • 2 Baths
    • 1,736 Sq.Ft.
View All Properties

Follow Us On Instagram