Leave a Message

Thank you for your message. I will be in touch with you shortly.

Explore My Properties

Property Description

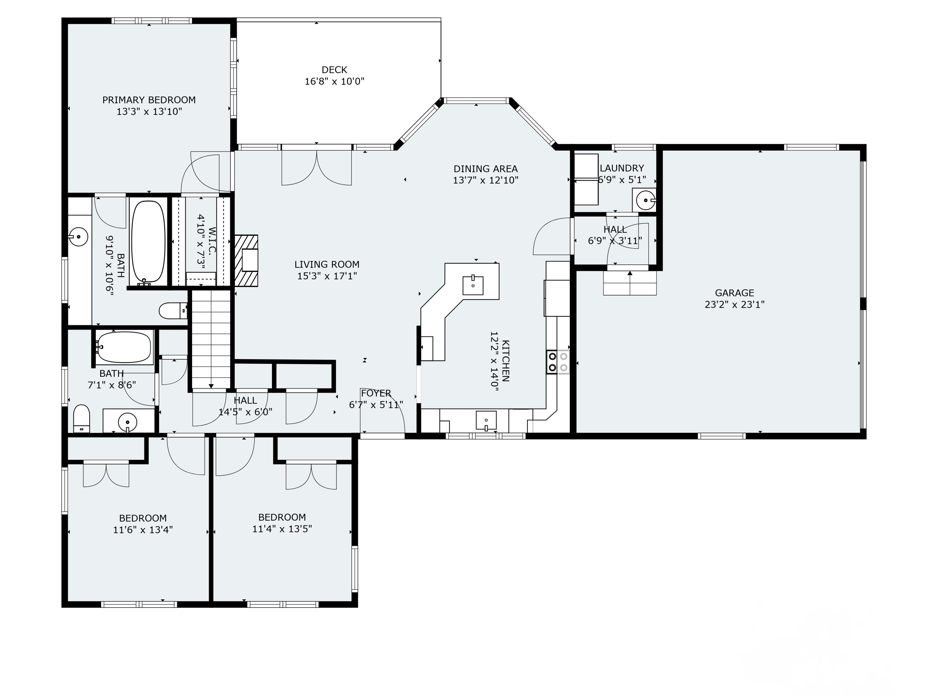
Nestled in the heart of the Boothbay Harbor Region, this stunning Contemporary Ranch offers the perfect blend of modern design and natural tranquility, as well as a walking right-of-way to the Back River. Step into this beautiful home and discover the expansive open-concept floor plan; gleaming hardwood floors; dramatic cathedral ceilings; and an abundance of windows that create a bright and airy atmosphere that seamlessly brings the outside in. Spacious kitchen with a unique layout and ample countertop space and cabinetry, ideal for culinary enthusiasts. Unwind in front of the cozy gas fireplace in the living room before retreating to the primary bedroom, complete with a full bathroom and walk-in closet. With the convenience of first-floor laundry, this home offers true one-floor living. Relax and entertain family and friends on the newly built front porch or private back deck that are surrounded by established and impressive landscaping. The attached two-car garage and full basement provide plenty of room for storage and more. Centrally located just minutes from the Boothbay Botanical Gardens' 250 acres of stunning landscapes; shopping; and Boothbay Harbor's charming shops and fine dining. Recreational opportunities here are endless! Enjoy a round of golf at The Boothbay Harbor Country Club; take a swim at the local YMCA; kayak or paddleboard along the coastline; and enjoy hiking along the 30 miles of trails that meander through 1,700 acres of preserved lands managed by the Boothbay Region Land Trust. The Boothbay Community Center provides residents with free weekly activities such card games; exercise; and crafts. The Boothbay Harbor Region is an iconic and world-renown destination, and the perfect place to call home. Don't miss this wonderful opportunity to live in one of Maine's most desirable locations!

Overview

Property Status
For Sale
Lot Size
1.19 Acres
MLS ID
1643620
Property Type
Residential
Year Built
2003

Features & Amenities

Total Area
1,604 Sq.Ft.
Neighborhood
Boothbay
Architecture Styles
Contemporary, Ranch
View Description
Scenic, Trees/Woods
Garage Spaces
2.0
Water Source
Well, Private
Roof
Shingle
Lot Features
Well Landscaped, Rolling/Sloping, Open, Level, Wooded, Near Golf Course, Near Shopping, Neighborhood, Subdivided
Parking
Auto Door Opener, 1 - 4 Spaces, Gravel, Inside Entrance
Heat Type
Hot Water, Direct Vent Furnace, Baseboard
Air Conditioning
None
Laundry Room
Laundry - 1st Floor, Main Level
Appliances
Refrigerator, Electric Range, Disposal, Dishwasher
Other Interior Features
Walk-in Closets, 1st Floor Bedroom, 1st Floor Primary Bedroom w/Bath, Bathtub, One-Floor Living, Storage, Primary Bedroom w/Bath
Sewer
Septic Tank, Private Sewer
Substructure
Concrete Perimeter
School District
AOS 98
Sales Price
$650,000
Real Estate Tax
$3,166/yr
HOA
$300/yr
Zoning
GR

Downloads

23 Sunny Acres Lane

Schedule a Tour

We would love to help you see this beautiful home! As a full-service brokerage, we can help you tour. Please submit an offer, and answer questions about the buying process.

Enter a valid email

Thank you

for your interest in 23 Sunny Acres Lane, Boothbay, ME 04537

back to page
23 Sunny Acres Lane
Navigate
Boothbay

Explore Boothbay

read more

Mortgage Calculator

Estimate your monthly mortgage payment, including the principal and interest, property taxes, and HOA. Adjust the values to generate a more accurate rate.
$0,000 Your Payment 20 15 65
$0,000 Your Payment

Current Listings

  • 62 Hunnewell Avenue Sold

    $1,600,000

    62 Hunnewell Avenue, Phippsburg, ME 04562

    • 4 Beds
    • 3 Baths
    • 3,310 Sq.Ft.
  • 15 North Point Lane Sold

    $1,100,000

    15 North Point Lane, Harpswell, ME 04079

    • 3 Beds
    • 3 Baths
    • 2,146 Sq.Ft.
  • 246 Coombs Road Sold

    $925,000

    246 Coombs Road, Brunswick, ME 04011

    • 4 Beds
    • 4 Baths
    • 2,998 Sq.Ft.
  • 978 Wiscasset Road For Sale

    $899,000

    978 Wiscasset Road, Boothbay, ME 04537

    • 4 Beds
    • 3 Baths
    • 2,136 Sq.Ft.
  • 467 Bay Road For Sale

    $895,000

    467 Bay Road, Bowdoinham, ME 04008

    • 3 Beds
    • 3 Baths
    • 2,164 Sq.Ft.
  • 14 Wolf Road Sold

    $800,000

    14 Wolf Road, Boothbay, ME 04537

    • 3 Beds
    • 1 Bath
    • 1,075 Sq.Ft.
  • 54 Tree Farm Road Sold

    $780,000

    54 Tree Farm Road, Brunswick, ME 04011

    • 3 Beds
    • 3 Baths
    • 3,376 Sq.Ft.
  • 72 Westside Drive Sold

    $765,000

    72 Westside Drive, West Bath, ME 04530

    • 3 Beds
    • 2 Baths
    • 1,484 Sq.Ft.
  • 3 Brian Drive Sold

    $750,000

    3 Brian Drive, Brunswick, ME 04011

    • 4 Beds
    • 3 Baths
    • 2,492 Sq.Ft.
  • 21 Longview Drive Sold

    $725,000

    21 Longview Drive, Portland, ME 04103

    • 4 Beds
    • 3 Baths
    • 2,448 Sq.Ft.
  • 400 Harpswell Islands Road Sold

    $710,000

    400 Harpswell Islands Road, Harpswell, ME 04079

    • 3 Beds
    • 2 Baths
    • 2,520 Sq.Ft.
  • 19 Burnham Woods Circle Sold

    $700,000

    19 Burnham Woods Circle, Scarborough, ME 04074

    • 4 Beds
    • 3 Baths
    • 2,635 Sq.Ft.
  • Lot 18 Beacon Drive Pending

    $689,900

    Lot 18 Beacon Drive, Brunswick, ME 04011

    • 3 Beds
    • 3 Baths
    • 2,094 Sq.Ft.
  • 369 River Road Sold

    $685,000

    369 River Road, Richmond, ME 04357

    • 3 Beds
    • 3 Baths
    • 2,576 Sq.Ft.
  • 20 Orchard Lane Sold

    $676,000

    20 Orchard Lane, New Gloucester, ME 04260

    • 3 Beds
    • 2 Baths
    • 2,154 Sq.Ft.
  • 11 Beacon Drive Pending

    $650,000

    11 Beacon Drive, Brunswick, ME 04011

    • 3 Beds
    • 2 Baths
    • 1,480 Sq.Ft.
  • 23 Sunny Acres Lane For Sale

    $650,000

    23 Sunny Acres Lane, Boothbay, ME 04537

    • 3 Beds
    • 3 Baths
    • 1,604 Sq.Ft.
  • 96 Haywood Lane Sold

    $650,000

    96 Haywood Lane, North Yarmouth, ME 04097

    • 2 Beds
    • 2 Baths
    • 1,572 Sq.Ft.
  • 145 Pork Point Road Sold

    $628,500

    145 Pork Point Road, Bowdoinham, ME 04008

    • 3 Beds
    • 2 Baths
    • 2,080 Sq.Ft.
  • 6 Apple Lane Sold

    $554,000

    6 Apple Lane, Standish, ME 04084

    • 4 Beds
    • 3 Baths
    • 2,558 Sq.Ft.
  • 407 Carding Machine Road Sold

    $550,000

    407 Carding Machine Road, Bowdoinham, ME 04008

    • 2 Beds
    • 1 Bath
    • 1,476 Sq.Ft.
  • 31 Beacon Drive Pending

    $544,100

    31 Beacon Drive, Brunswick, ME 04011

    • 3 Beds
    • 3 Baths
    • 2,269 Sq.Ft.
  • 1854 Alna Road Sold

    $525,000

    1854 Alna Road, Alna, ME 04535

    • 3 Beds
    • 2 Baths
    • 1,921 Sq.Ft.
  • 18 Garrison Street Sold

    $500,000

    18 Garrison Street, Brunswick, ME 04011

    • 5 Beds
    • 2 Baths
    • 2,696 Sq.Ft.
  • 10 Penley Street E For Sale

    $497,000

    10 Penley Street E, Augusta, ME 04330

    • 3 Beds
    • 1 Bath
    • 2,850 Sq.Ft.
  • 376 Bowdoinham Road Sold

    $484,000

    376 Bowdoinham Road, Sabattus, ME 04280

    • 3 Beds
    • 2 Baths
    • 1,782 Sq.Ft.
  • 122 Jordan Avenue Sold

    $470,000

    122 Jordan Avenue, Brunswick, ME 04011

    • 3 Beds
    • 2 Baths
    • 1,318 Sq.Ft.
  • 70 Blue Spruce Road Sold

    $435,000

    70 Blue Spruce Road, Wilton, ME 04294

    • 4 Beds
    • 3 Baths
    • 2,566 Sq.Ft.
  • 34 Columbia Avenue Sold

    $415,000

    34 Columbia Avenue, Brunswick, ME 04011

    • 3 Beds
    • 2 Baths
    • 1,340 Sq.Ft.
  • 16 Garrison Street Sold

    $411,000

    16 Garrison Street, Brunswick, ME 04011

    • 2 Baths
    • 1,794 Sq.Ft.
  • 21 Chestnut Street Sold

    $385,000

    21 Chestnut Street, Bath, ME 04530

    • 3 Beds
    • 2 Baths
    • 1,857 Sq.Ft.
  • 175 Main Street Sold

    $380,000

    175 Main Street, Bowdoinham, ME 04008

    • 3 Beds
    • 2 Baths
    • 1,144 Sq.Ft.
  • 497 Lower Street Sold

    $375,000

    497 Lower Street, Turner, ME 04282

    • 5 Beds
    • 2 Baths
    • 2,177 Sq.Ft.
  • 11 Center Street Sold

    $365,400

    11 Center Street, Richmond, ME 04357

    • 3 Beds
    • 2 Baths
    • 2,040 Sq.Ft.
  • 17 Oak Street Sold

    $351,500

    17 Oak Street, Brunswick, ME 04011

    • 3 Beds
    • 1 Bath
    • 1,536 Sq.Ft.
  • 1145 Brunswick Road Sold

    $350,000

    1145 Brunswick Road, Richmond, ME 04357

    • 2 Beds
    • 2 Baths
    • 1,352 Sq.Ft.
  • 359 Augusta Road Sold

    $350,000

    359 Augusta Road, Topsham, ME 04086

    • 2 Baths
    • 2,212 Sq.Ft.
  • 5 Fairview Drive Sold

    $345,000

    5 Fairview Drive, Leeds, ME 04263

    • 3 Beds
    • 2 Baths
    • 2,352 Sq.Ft.
  • 82 Munroe Lane, 82 Sold

    $335,000

    82 Munroe Lane, 82, Topsham, ME 04086

    • 2 Beds
    • 2 Baths
    • 1,104 Sq.Ft.
  • 17 Secluded Drive Sold

    $325,000

    17 Secluded Drive, Windham, ME 04062

  • 312 High Street Sold

    $325,000

    312 High Street, Bath, ME 04530

    • 2 Beds
    • 2 Baths
    • 1,300 Sq.Ft.
  • 0 White Road Pending

    $315,000

    0 White Road, Bowdoinham, ME 04008

  • 43 Munroe Lane, 43 Sold

    $299,000

    43 Munroe Lane, 43, Topsham, ME 04086

    • 2 Beds
    • 2 Baths
    • 1,104 Sq.Ft.
  • 974 Winslows Mills Road Sold

    $299,000

    974 Winslows Mills Road, Waldoboro, ME 04572

    • 3 Beds
    • 2 Baths
    • 1,260 Sq.Ft.
  • 33 Munroe Lane, 33 Sold

    $276,700

    33 Munroe Lane, 33, Topsham, ME 04086

    • 2 Beds
    • 2 Baths
    • 1,104 Sq.Ft.
  • 63 Main Street Sold

    $255,000

    63 Main Street, Turner, ME 04282

    • 3 Beds
    • 3 Baths
    • 1,680 Sq.Ft.
  • 441 Middle Road Sold

    $252,000

    441 Middle Road, Woolwich, ME 04579

    • 2 Beds
    • 1 Bath
    • 914 Sq.Ft.
  • 15 Blueberry Hill Road Active Under Contract

    $250,000

    15 Blueberry Hill Road, Georgetown, ME 04548

    • 2 Beds
    • 512 Sq.Ft.
  • 59 Munroe Lane, 59 Sold

    $235,000

    59 Munroe Lane, 59, Topsham, ME 04086

    • 2 Beds
    • 2 Baths
    • 1,104 Sq.Ft.
  • 143 Mount Vernon Avenue Sold

    $234,000

    143 Mount Vernon Avenue, Augusta, ME 04330

    • 3 Beds
    • 2 Baths
    • 1,736 Sq.Ft.
View All Properties

Follow Us On Instagram